-
-
-
Tổng tiền thanh toán:
-
Tổng diện tích đất hơn 300m2. Nhu cầu của khách khách hàng cần 3 phòng ngủ, khách bếp, phòng wc chung. Sau khi kiến trúc sư của House Ideas tư vấn chủ đầu tư đã chọn kiểu cách - biệt thự vườn (kiến trúc biệt thự mái thái) với công năng phân chia hợp lý gọn gàng, từng thanh viên trong gia đình đều có không gian riêng tư. Phong cách kết hợp kế thừa của các hình dạng kiến trúc cổ truyền của Việt Nam xưa. Nhà có hiên rộng phân chia không gian chính phụ rõ ràng ,kết hợp gạch đỏ làm điểm nhấn cây xanh hoa cỏ bao phủ ngôi nhà tạo nên một hệ sinh thái tốt cho gia chủ khi sống và sinh hoạt tại ngồi nhà của mình.

house ideas thiết kế màu sắc nhã nhặn hút mắt, đây là view hiên trước nhà có một góc nhỏ để tiếp những người bạn thân cùng nhau uống trà trò chuyện và ngắm ra cách đồng trước nhà vào mỗi buổi hoàng hôn

Cây xanh, cây ăn quả được bố trí trồng tạo bóng mát và thanh lọc không khí. Xem thêm thiết kế kiến trúc của house ideas

Nhà có diện tích sân rộng có thể để ô tô hay phương tiện đi lại một cách thoải mái

Mộc mạc gần gũi tạo nên phong cách cho gia chủ

Phối cảnh hiên trước nhà có một góc nhỏ để tiếp những người bạn thân cùng nhau uống trà trò chuyện và ngắm ra cách đồng trước nhà vào mỗi buỗi hoàng hôn

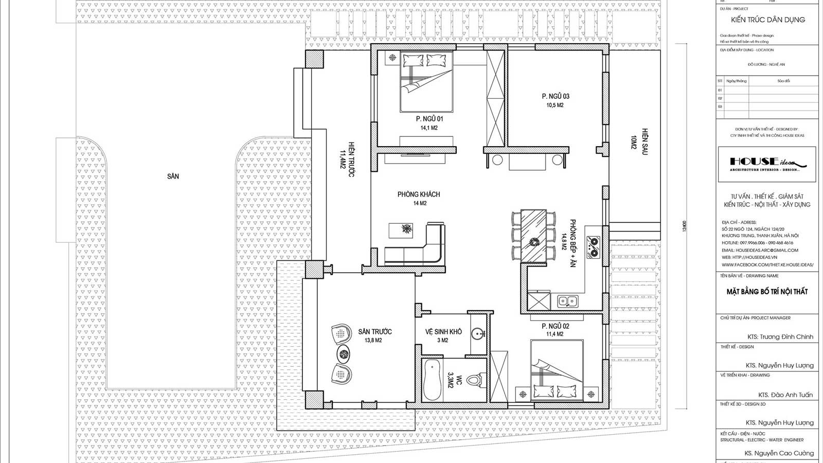
Mặt bằng house ideas phần chia công năng diện tịch 12,4 x 10,3m
Mọi thông tin xin liên hệ
Số điện thoại: 097 9966 006 hoặc 090 468 4614
Đăng ký tư vấn thiết kế tại đây
fanpage: https://www.facebook.com/Thiet.ke.house.ideas