-
-
-
Tổng tiền thanh toán:
-
Trong bối cảnh đô thị ngày càng chật chội, ô nhiễm, nhiều người có xu hướng tìm về những không gian sống yên bình ở ngoại thành. Nhà vườn không chỉ là nơi nghỉ dưỡng lý tưởng mà còn là lựa chọn hoàn hảo để cân bằng cuộc sống, tận hưởng không gian xanh mát, trong lành.
Khi xây dựng nhà vườn ở ngoại thành, vị trí là yếu tố quan trọng hàng đầu. Bạn nên chọn nơi có giao thông thuận tiện, hệ thống hạ tầng phát triển nhưng vẫn đảm bảo sự riêng tư, yên tĩnh.

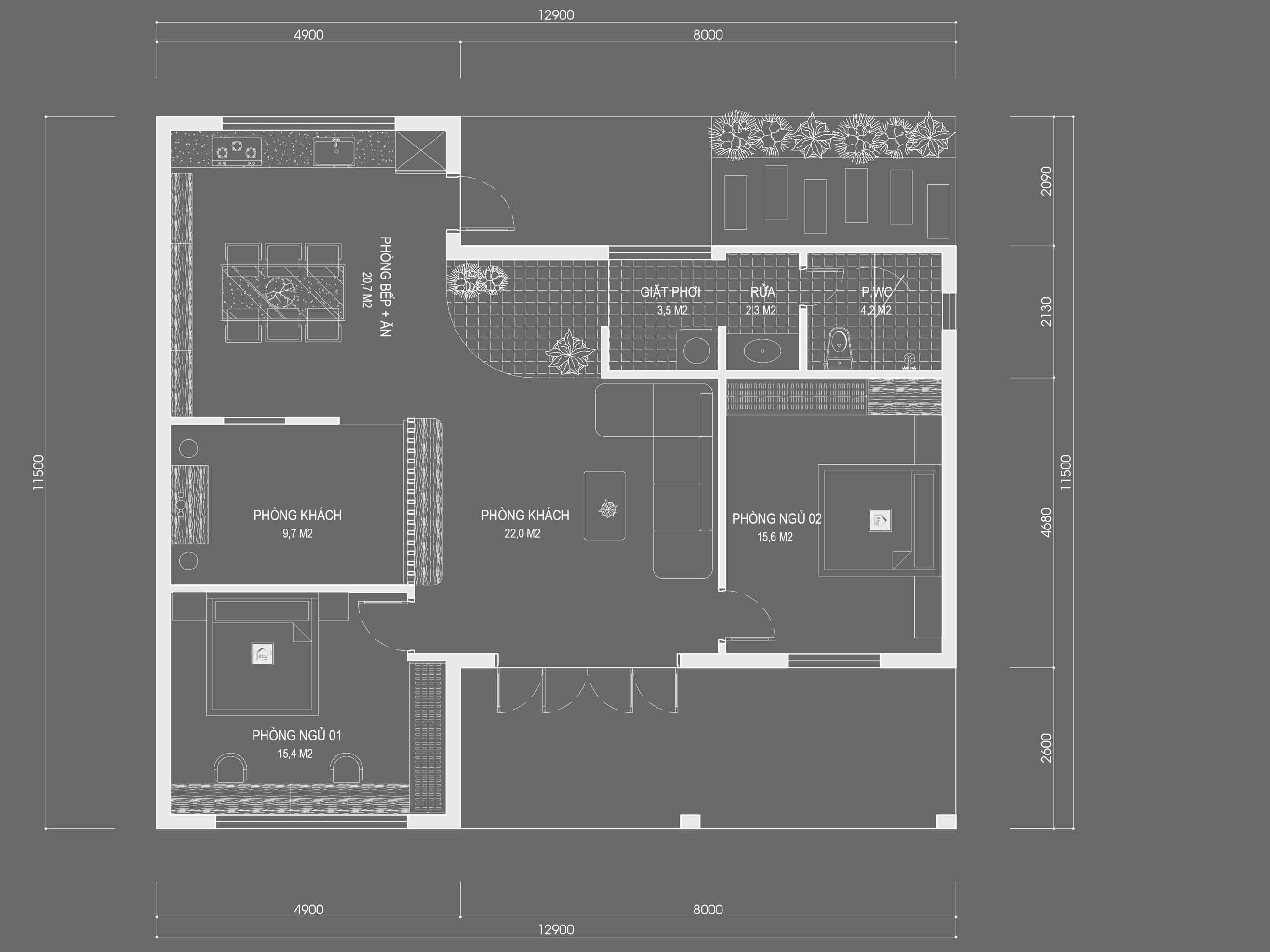
Tùy vào sở thích và nhu cầu, bạn có thể lựa chọn nhiều phong cách khác nhau như:
Nhà vườn hiện đại: Kiến trúc tối giản, không gian mở, nhiều cửa kính đón ánh sáng tự nhiên.
Nhà vườn truyền thống: Mang nét đẹp của kiến trúc Việt Nam, sử dụng nhiều vật liệu tự nhiên như gỗ, gạch nung.
Nhà vườn sinh thái: Hòa hợp với thiên nhiên, kết hợp vườn cây, hồ nước để tạo không gian thư giãn tối đa.
Bố trí sân vườn hợp lý sẽ giúp nâng cao giá trị thẩm mỹ và công năng sử dụng:
Khu vực xanh: Trồng cây xanh, thảm cỏ, tạo không gian trong lành.
Lối đi và tiểu cảnh: Sử dụng đá lát, gạch nung, kết hợp với đài phun nước, hồ cá koi.
Không gian thư giãn: Bố trí bàn ghế ngoài trời, xích đu, võng để tận hưởng không gian thiên nhiên.



Khảo sát địa hình, đánh giá điều kiện thi công.
Lên bản vẽ thiết kế phù hợp với mong muốn của gia chủ.
Lựa chọn vật liệu bền vững, thân thiện với môi trường.
Sử dụng gỗ, đá tự nhiên, kính cường lực để tạo sự hài hòa với thiên nhiên.
Thi công móng, khung nhà đảm bảo kết cấu vững chắc.
Hoàn thiện nội thất và cảnh quan xung quanh.
Kiểm tra và bàn giao công trình.
Không gian sống trong lành, gần gũi thiên nhiên.
Tiết kiệm chi phí sinh hoạt so với nội thành.
Tạo nơi nghỉ dưỡng lý tưởng cho gia đình.
Gia tăng giá trị bất động sản trong tương lai.
Khi lựa chọn đơn vị thiết kế thi công nhà vườn, bạn nên tham khảo các tiêu chí sau:
Kinh nghiệm thực tế và các công trình đã thực hiện.
Đội ngũ kiến trúc sư, kỹ sư có chuyên môn cao.
Cam kết chất lượng và bảo hành công trình dài hạn.
Nếu bạn đang tìm kiếm đơn vị thiết kế thi công nhà vườn chuyên nghiệp, hãy liên hệ ngay để được tư vấn và báo giá chi tiết!
xem thêm mẫu nhà gác lửng đẹp
xem thêm mẫu nhà cấp 4 130m2 3 phòng ngủ
Hotline: 0777.334.773 - 097.9966.006 hoặc Zalo: 0777.334.773 - 097.9966.00