-
-
-
Tổng tiền thanh toán:
-
Thiết kế kiến trúc phong cách tân cổ hay bán tân - tân cổ điển là một trong những phong cách đem lại giá trị về kinh tế và thẩm mỹ lâu bền nhất từ trước tới nay. Với đặc trưng là các phào chỉ được bố trí một cách tỉ mỉ chi tiết, hình khối đăng đối chắc chắn luôn tạo ra được những công trình bền đẹp theo năm tháng. thiết kế House ideas

Thiết kế kiến trúc tân cổ với màu sắc chủ yếu là trắng sữa kết hợp với màu vàng be luôn tạo được điểm cộng cho công trình

Thiết kế có thể chuyển đổi từ cửa gỗ truyền thống sang dạng hệ cửa nhôm kính Xingfa hay Việt Pháp


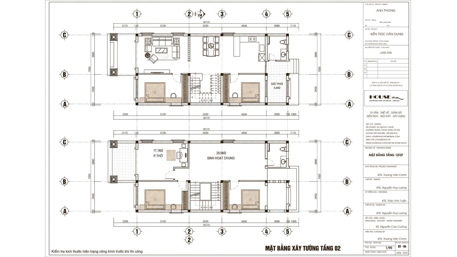
Tầng 01 bố trí phòng khách nối liền bếp, 1 nhà vệ sinh, 2 phòng ngủ và khu sân giặt phơi. Tầng 2 được bố trí 2 phòng ngủ theo trục từ tầng 01 lên có phòng thờ hướng ra cổng chính cộng thêm phần đệm và sinh hoạt chung.
Mọi thông tin xin liên hệ
Số điện thoại: 097 9966 006 hoặc 090 468 4614
Đăng ký tư vấn thiết kế tại đây
Fanpage: https://www.facebook.com/Thiet.ke.house.ideas